Verkocht onder voorbehoud:Ligusterstraat 9, 2225 RE Katwijk - Foto
Verkocht onder voorbehoud
+53

Ligusterstraat 9 2225 RE Katwijk € 549.000,- k.k.

  • Woonhuis
  • 4 kamers
  • 3 slaapkamers
  • 1 badkamer
  • Bouwjaar 1935
  • 136 m² perceeloppervlakte
  • 101 m² gebruiksoppervlakte
  • Gestoffeerd
  • E Energielabel E

Beschrijving

Te Koop! Ligusterstraat 9, 2225 RE te Katwijk aan Zee

Vraagprijs: € 549.000,- k.k.
Woon/gebruiksoppervlakte oppervlakte: ca. 115 m² | Inhoud: ca. 385 m³
Perceel: 136 m² | Bouwjaar: ca. 1935
Energielabel: E | CV-installatie: Remeha Tzerra M39C (2017)
Tuin op het zuidwesten | 2 bergingen | Veranda

Karakteristieke jaren '30-hoekwoning met diepe (ca. 12m) zonnige tuin in geliefde wijk ‘De Zuid’

In het hart van de populaire woonwijk De Zuid, op loopafstand van het strand, de duinen én het gezellige centrum van Katwijk aan Zee, staat deze charmante jaren '30 hoekwoning klaar voor een nieuwe eigenaar. De woning is aan de achterzijde uitgebouwd, beschikt over een fraai aangelegde tuin op het zuidwesten, een veranda, twee bergingen én is grotendeels gemoderniseerd met behoud van authentieke details.

Hier woon je sfeervol, comfortabel én centraal – een heerlijke gezinswoning op een fantastische plek!

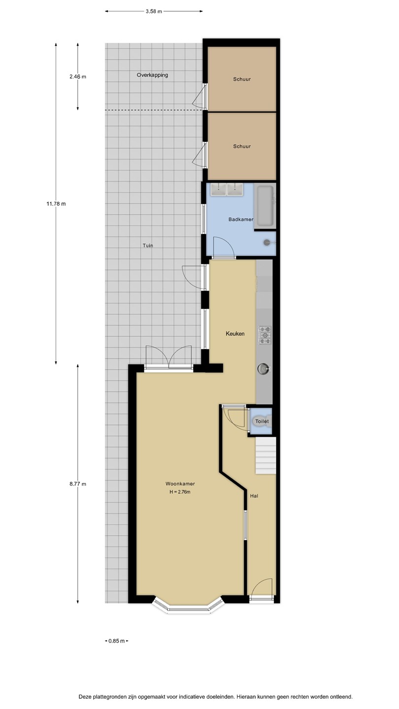
Indeling – Begane grond:

Entree / ruime hal, met een uitgebreide meterkast, garderoberuimte, moderne toiletruimte, trapopgang naar de verdieping en toegang tot de woonkamer.

De lichte en zeer sfeervolle woonkamer is voorzien van hoge plafonds (ca. 2,75 m), een klassieke erker aan de voorzijde, openslaande deuren naar de tuin en heerlijk veel daglicht. In de uitbouw aan de achterzijde is de open keuken gesitueerd – modern en compleet ingericht met diverse inbouwapparatuur (o.a. vaatwasser, koelkast/vriezer, oven, afzuigkap). Via een achterdeur is ook vanuit de keuken de tuin bereikbaar.

Vanuit de keuken is er toegang tot de ruime en luxe badkamer, voorzien van een comfortabel ligbad, een royale inloopdouche, een dubbel wastafelmeubel en een verwarmde spiegel.

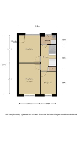
1e verdieping:

De overloop biedt toegang tot drie slaapkamers, waarvan twee aan de voorzijde en één ruime aan de achterzijde met dakkapel. Ook is er een aparte was-/stookruimte aanwezig en toegang tot het platte dak. Een vaste trap leidt naar de zolderverdieping.

2e verdieping:

De tweede verdieping is momenteel één open ruimte, met stahoogte in de nok (ca. 2,30 m) en een dakraam aan de achterzijde. Deze verdieping is niet geïsoleerd, maar biedt uitstekende uitbreidingsmogelijkheden: denk aan een nokverhoging, extra dakkapel of het creëren van een extra slaapkamer of werkruimte.

Tuin & buitenruimte:

De zonnige achtertuin van ca. 12 meter diep is perfect gelegen op het zuidwesten en is fraai aangelegd. Achterin vind je een sfeervolle houten veranda (ca. 9 m²) – een fijne plek om te ontspannen. Door de gunstige tuin ligging is er zon tot in de avonduren.

Verder beschikt de woning over twee aangebouwde bergingen: beide van hout en met elektra . Samen ca. 12 m² groot. De tuin is bereikbaar via een zij-achterom.

Bijzonderheden:

* Karakteristieke jaren '30 hoekwoning
* Uitbouw aan de achterzijde met moderne keuken en badkamer
* Veel lichtinval, hoge plafonds, originele erker
* Woon / gebruiksoppervlakte ca. 115 m² | Perceel 136 m² | Inhoud ca. 385 m³
* Energielabel E | CV-installatie: Remeha Tzerra M39C (2017)
* 3 slaapkamers + zolder met potentie
* Diepe, zonnige tuin op het zuidwesten (ca. 12 meter diep)
* Houten veranda van ca. 9 m²
* Twee bergingen met elektra (samen ca. 12 m²)
* Parkeren met vergunning – kijk op de website van de gemeente Katwijk.nl voor meer info
* Gelegen in populaire woonwijk 'De Zuid' op loopafstand van het strand, centrum, winkels en gezellige horeca
* Goede ontsluiting richting N206 / A44 richting Leiden, Den Haag en Schiphol
* Uitbouw- en opbouwmogelijkheden aanwezig – ideaal voor wie meer ruimte wil!

Interesse?

Deze woning is een unieke kans voor wie zoekt naar sfeer, ruimte en een toplocatie in Katwijk aan Zee. De combinatie van jaren '30 charme, modern wooncomfort en uitbreidingsmogelijkheden maken dit een bijzonder aantrekkelijk geheel.

Makelaar Ronald Kooitje nodigt je van harte uit voor een bezichtiging. Voor meer informatie, foto’s en documenten:
Bekijk de woningwebsite op: ligusterstraat9.nl

Deze verkoopinformatie is met zorg samengesteld. Aan onvolkomenheden kunnen geen rechten worden ontleend. De gebruikelijke ouderdoms- en asbestclausules zijn van toepassing.

Kaart

Kenmerken

Overdracht

Referentienummer
00797
Vraagprijs
€ 549.000,- k.k.
Elektra
€ 56,42
Gas
€ 241,08
Water
€ 33,23
Inrichting
Ja
Inrichting
Gestoffeerd
Status
Verkocht onder voorbehoud
Aanvaarding
In overleg
Aangeboden sinds
Zaterdag 31 januari 2026
Laatste wijziging
Woensdag 25 februari 2026

Bouw

Type object
Woonhuis, eengezinswoning, hoekwoning
Soort bouw
Bestaande bouw
Bouwperiode
1935
Dakbedekking
Dakpannen
Type dak
Zadeldak
Isolatievormen
Gedeeltelijk dubbel glas

Oppervlaktes en inhoud

Perceeloppervlakte
136 m²
Woonoppervlakte
101 m²
Woonkameroppervlakte
32,27 m²
Keukenoppervlakte
8,86 m²
Inhoud
385 m³
Oppervlakte overige inpandige ruimten
13,7 m²
Oppervlakte externe bergruimte
12,1 m²

Indeling

Aantal bouwlagen
3
Aantal kamers
4 (waarvan 3 slaapkamers)
Aantal badkamers
1 (en 1 apart toilet)

Locatie

Ligging
Dichtbij openbaar vervoer
In woonwijk
Nabij school

Tuin

Type
Achtertuin
Hoofdtuin
Ja
Oriëntering
Zuid-west
Heeft een achterom
Ja
Staat
Prachtig aangelegd

Energieverbruik

Energielabel
E

CV ketel

CV ketel
Remeha Tzerra
Warmtebron
Gas
Bouwjaar
2018
Eigendom
Eigendom

Uitrusting

Warm water
Centrale voorziening
Verwarmingssysteem
Centrale verwarming
Badkamervoorzieningen
Douche
Ligbad
Wastafelmeubel
Glasvezelaansluiting aanwezig
Ja
Tuin aanwezig
Ja
Heeft schuur/berging
Ja

Kadastrale gegevens

Kadastrale aanduiding
Katwijk A 11342
Perceeloppervlakte
136 m²
Omvang
Geheel perceel
Eigendomsituatie
Eigen grond

Media

Video

Virtuele tour

Plattegronden

Brochure(s) en overige bijlagen

Brochure KMD 2025.pdf Download
Meetrapport Ligusterstraat 9 Katwijk.pdf Download
Definitief energielabel E tot 26 januari 2036 Ligusterstraat 9 Katwijk.pdf Download
Kadastrale informatie A Ligusterstraat 9 Katwijk - kopie.pdf Download
Kadastrale kaart Ligusterstraat 9 Katwijk.pdf Download
Ingevulde lijst van zaken Ligusterstraat 9 Katwijk.pdf Download
Ingevulde vragenlijst Ligusterstraat 9 Katwijk.pdf Download

ZonZone