Verkocht onder voorbehoud:Vuurtorenplein 128, 2202 PD Noordwijk - Foto
Verkocht onder voorbehoud
+49

Vuurtorenplein 128 2202 PD Noordwijk € 315.000,- k.k.

  • Appartement
  • 2 kamers
  • 1 slaapkamer(s)
  • 1 badkamer
  • Bouwjaar 1962
  • 37 m² gebruiksoppervlakte
  • Gestoffeerd
  • C Energielabel C

Beschrijving

Op een schitterende locatie met een weids uitzicht over Noordwijk bieden wij dit 2-kamerappartement aan, gelegen aan het Vuurtorenplein. Het appartement bevindt zich op een steenworp afstand van strand, zee, duinen en de boulevard met diverse strandtenten en restaurants. Ook de gezellige winkelstraat ligt op loopafstand.
Het gestoffeerde appartement beschikt over een woonkamer met open keuken, een badkamer, één slaapkamer en een balkon.

Indeling
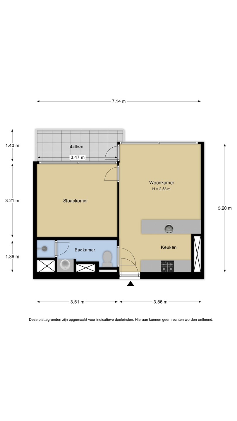
De moderne centrale entree op de begane grond is voorzien van een bellentableau, brievenbussen, trappenhuis en liftinstallatie. Het appartement bevindt zich op de 6e verdieping.

Bij binnenkomst komt u direct in de woonkamer. Aan de rechterzijde bevindt zich de keuken (2021) met bar, uitgerust met een koel-vriescombinatie, combi-oven, kookplaat en afzuigkap. In de keuken is tevens een wasmachine geplaatst, uitgevoerd in een bijpassende kleurstelling.
Aan de linkerzijde ligt de badkamer, voorzien van een douchecabine, handdoekradiator, wastafelmeubel en toilet. Dankzij de grote raampartijen heeft de woonkamer een prettige lichtinval. De slaapkamer bevindt zich aan de balkonzijde en is eveneens licht en aangenaam. Het balkon is gelegen op het oosten, waardoor u hier ’s ochtends heerlijk van de zon en een kopje koffie kunt genieten.

In de kelder beschikt het appartement over een kleine privéberging. Aan de achterzijde van het gebouw bevindt zich een afgesloten parkeerterrein. De parkeerruimte is beperkt en er is geen recht op een vaste parkeerplaats (vol = vol).

Maandelijkse kosten:
Servicekosten: € 147,97 exclusief voorschot stookkosten.
Stookkosten: € 66,67
Energielabel: C

Woningwebsite: vuurtorenplein128.nl.
Op de eigen website van dit huis vindt u extra informatie, foto’s, plattegronden en documenten.

Deze verkoopinformatie is met zorg samengesteld. Er kunnen echter geen rechten aan worden ontleend. Ten aanzien van eventuele onjuistheden aanvaarden wij geen aansprakelijkheid.

Kaart

Kenmerken

Overdracht

Referentienummer
00805
Vraagprijs
€ 315.000,- k.k.
Servicekosten
€ 147,97
Verwarming
€ 66,67
Inrichting
Ja
Inrichting
Gestoffeerd
Status
Verkocht onder voorbehoud
Aanvaarding
In overleg
Aangeboden sinds
Vrijdag 20 februari 2026
Laatste wijziging
Woensdag 29 april 2026

Bouw

Type object
Appartement, galerijflat, corridorflat
Woonlaag
6e woonlaag
Soort bouw
Bestaande bouw
Bouwperiode
1962
Dakbedekking
Bitumen
Type dak
Platdak
Keurmerken
Energie prestatie advies
Isolatievormen
Grotendeels dubbel glas

Oppervlaktes en inhoud

Woonoppervlakte
36,5 m²
Woonkameroppervlakte
11,43 m²
Inhoud
118 m³
Oppervlakte externe bergruimte
1,4 m²
Oppervlakte gebouwgebonden buitenruimte
5,1 m²
Balkonoppervlakte
4,86 m²

Indeling

Aantal bouwlagen
1
Aantal kamers
2 (waarvan 1 slaapkamer)
Aantal badkamers
1

Locatie

Ligging
Aan zee
Dichtbij openbaar vervoer
In woonwijk
Nabij school

Energieverbruik

Energielabel
C

Uitrusting

Verwarmingssysteem
Blokverwarming
Badkamervoorzieningen
Douche
Toilet
Wastafel
Heeft een balkon
Ja
Heeft een lift
Ja
Heeft schuur/berging
Ja

Vereniging van Eigenaren

Ingeschreven bij de KvK
Ja
Jaarlijkse vergadering
Ja
Periodieke bijdrage
Ja
Reservefonds
Ja
Opstal verzekering
Ja

Kadastrale gegevens

Kadastrale aanduiding
Noordwijk N 2173
Omvang
Appartementsrecht of complex
Eigendomsituatie
Eigen grond
Indexnummer
61

Brochure(s) en overige bijlagen

MTMO Bedrijfsbrochure KMD 2025.pdf Download
Meetrapport Vuurtorenplein 128 Noordwijk.pdf Download
Definitief energielabel Vuurtorenplein 128 Noordwijk.pdf Download
Ingevulde lijst van zaken Vuurtorenplein 128 Noordwijk.pdf Download
Ingevulde vragenlijst Vuurtorenplein 128 Noordwijk.pdf Download
Kadastrale kaart Vuurtorenplein 128 Noordwijk.pdf Download
Kadastrale informatie anomien Vuurtorenplein 128 Noordwijk.pdf Download
Akte van Splitsing Vuurtorenplein 128, 2202 PD Noordwijk.pdf Download
Jaarverslag 2024- Vuurtorenplein 128, 2202 PD Noordwijk.pdf Download
Notulen 2025 - Vuurtorenplein 128, 2202 PD Noordwijk.pdf Download
Verzekering polis- Vuurtorenplein 128, 22202 PD Noordwijk.pdf Download
Actueel Huishoudelijk 2025- Vuurtorenplein 128, 2202 PD Noordwijk.pdf Download
BAG Viewer Vuurtorenplein 128 Noordwijk.pdf Download
Bodemloket Vuurtorenplein 128 Noordwijk.pdf Download
WOZWaardeloket Vuurtorenplein 128 Noordwijk.pdf Download

ZonZone