Nieuw in verkoop:Salvialaan 19, 2343 XA Oegstgeest - Foto
Nieuw in verkoop
+52

Salvialaan 19 2343 XA Oegstgeest € 645.000,- k.k.

  • Woonhuis
  • 4 kamers
  • 3 slaapkamers
  • 1 badkamers
  • Bouwjaar 1967
  • 192 m² perceeloppervlakte
  • 112 m² gebruiksoppervlakte
  • Gestoffeerd
  • A Energielabel A

Beschrijving

Te koop! Salvialaan 19, 2343 XA Oegstgeest

Vraagprijs: € 645.000,- k.k.
Woonoppervlakte: ca. 112 m² | Perceel: 192 m² | Energielabel: A
Carport op eigen terrein | Bouwjaar: 1967 | Oplevering: in overleg

Comfortabel wonen in de geliefde Bloemenbuurt – energiezuinig en met stijl gemoderniseerd

Op zoek naar een instapklare gezinswoning in een fijne woonwijk met alles in de buurt? Dan mag u Salvialaan 19 absoluut niet missen! Deze uitgebouwde en met smaak afgewerkte tussenwoning is gelegen in de populaire en kindvriendelijke Bloemenbuurt van Oegstgeest, op loopafstand van winkels, scholen en sportvoorzieningen – én met het centrum van Leiden binnen 10 fietsminuten.

Wat direct opvalt is de uitstekende staat van onderhoud, de stijlvolle afwerking en het feit dat deze woning met energielabel A volledig is voorbereid op de toekomst. Denk aan HR++ beglazing, kunststof kozijnen, vloerverwarming, een Nefit HR cv-installatie én 8 zonnepanelen van 410Wp per stuk. Dat is pas duurzaam wonen met comfort!

Indeling

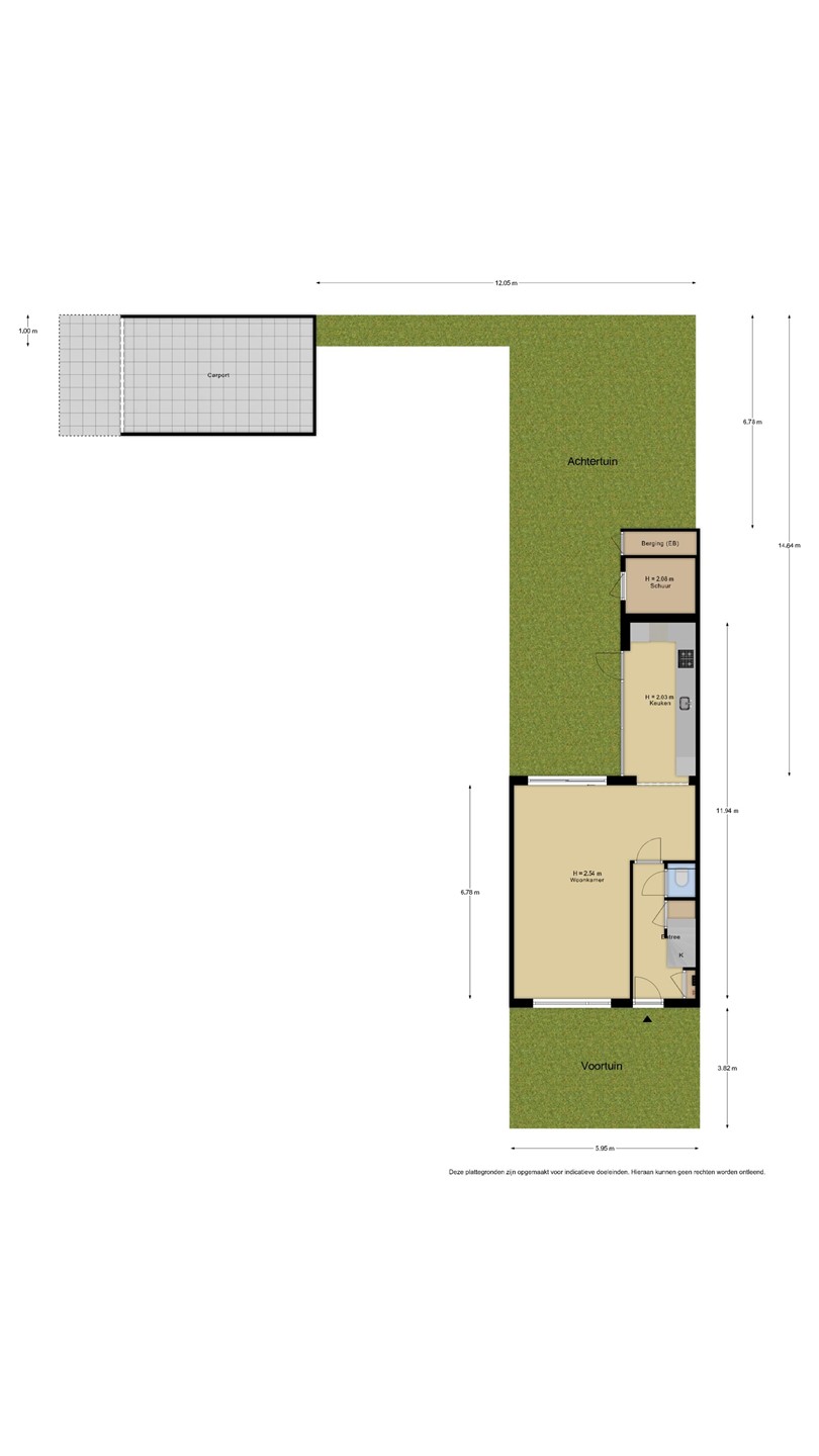
Begane grond:
Via de verzorgde voortuin (oost) naar de entree. In de hal vindt u een uitgebreide meterkast, garderoberuimte, trapopgang, trapkast én een modern toilet met fonteintje. De ruime en lichte woonkamer is strak afgewerkt met eikenhouten vloerdelen, glad gestucte wanden en plafonds, én voorzien van vloerverwarming. Via een schuifpui heeft u toegang tot de zeer net aangelegde achtertuin op het zonnige westen.

Aan de achterzijde is de woning uitgebouwd en voorzien van een moderne open keuken met veel licht inval door mooie, grote kunststof raamkozijnen. De keuken is compleet uitgerust met o.a. een inductie kookplaat, vaatwasser, afzuigkap, combi-oven, een Quooker COMBI+ en een luxe Liebherr wijnklimaatkast. Een plek waar koken en gezelligheid perfect samenkomen.

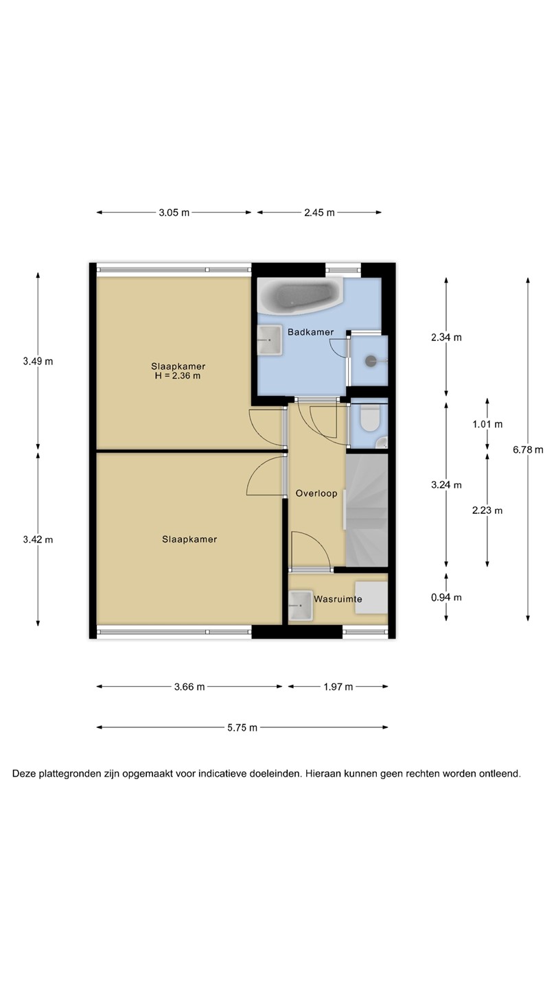
1e verdieping:
Overloop met toegang tot twee ruime slaapkamers (voor en achter), een stijlvolle badkamer, een separaat toilet met fonteintje én een aparte wasruimte – ideaal voor wasmachine, droger en extra opslag. De badkamer is recent vernieuwd en een waar plaatje: modern betegeld, met inloopdouche, ligbad en een fraai wastafelmeubel.

2e verdieping:
Vaste trap naar de zolderverdieping met voorzolder, cv-/mv-opstelling en een royale derde slaapkamer met dakkapel aan de achterzijde. Licht, praktisch en van goed formaat – ook uitstekend geschikt als thuiswerkruimte of hobbykamer.

Tuin & buitenruimte:
De achtertuin op het zonnige westen is netjes betegeld en aangelegd met groen, een betegeld terras en biedt volop privacy. In de aangebouwde stenen bergingen (totaal ca. 6 m²) kunt u met gemak fietsen, tuinspullen of gereedschap kwijt. Via de tuin is de eigen carport bereikbaar aan de achterzijde (Bijdorplaan). Deze carport is eenvoudig af te sluiten, waardoor een volwaardige garage tot de mogelijkheden behoort.

Over de ligging:
Deze woning ligt in de gezellige ‘Bloemenbuurt’ van Oegstgeest. Hier woont u rustig, maar met alle voorzieningen dichtbij: van basisscholen en sportverenigingen tot het winkelcentrum 'Lange Voort'. Binnen 10 minuten fietsen bereikt u het centrum van Leiden of het NS-station. Uitvalswegen richting de A44 en N206 liggen om de hoek, en ook natuurliefhebbers zitten hier goed: de Klinkenbergerplas, de Kagerplassen én het strand van Katwijk aan Zee zijn allemaal op korte afstand bereikbaar.

Bijzonderheden op een rij:
* Bouwjaar: 1967
* Energielabel: A
* 8 zonnepanelen: (410 Wp per stuk)
* Woonoppervlakte: ca. 112 m²
* Perceel: 192 m²
* Nefit Proline cv-ketel (2017)
* Vloerverwarming begane grond
* Aangebouwde stenen bergingen (totaal ca. 6 m²)
* Carport op eigen terrein (via Bijdorplaan)
* Badkamer ca. 4 jaar oud | Keuken ca. 3 jaar oud
* De woning is grotendeels voorzien van kunststof kozijnen met HR++ glas
* Zeer verzorgd en instapklaar!

Heeft u interesse?
Makelaar Ronald Kooitje nodigt u van harte uit om Salvialaan 19 persoonlijk te komen bekijken. Ervaar zelf hoe prettig en comfortabel u hier kunt wonen – in een moderne woning, met energiezuinige voorzieningen, in een fijne buurt.

Bezoek ook de woningwebsite salvialaan19.nl voor meer informatie, plattegronden, foto’s en documenten.

Deze verkoopinformatie is met zorg samengesteld. Er kunnen echter geen rechten aan worden ontleend. Ten aanzien van eventuele onjuistheden aanvaarden wij geen aansprakelijkheid.

Kaart

Kenmerken

Overdracht

Referentienummer
00784
Vraagprijs
€ 645.000,- k.k.
Elektra
€ 45,-
Gas
€ 45,-
Water
€ 15,-
Inrichting
Ja
Inrichting
Gestoffeerd
Status
Nieuw in verkoop
Aanvaarding
In overleg
Aangeboden sinds
Donderdag 30 oktober 2025

Bouw

Type object
Woonhuis, eengezinswoning, tussenwoning
Soort bouw
Bestaande bouw
Bouwperiode
1967
Dakbedekking
Dakpannen
Type dak
Zadeldak
Isolatievormen
Dubbel glas
Spouwmuren

Oppervlaktes en inhoud

Perceeloppervlakte
192 m²
Woonoppervlakte
111,9 m²
Woonkameroppervlakte
24,88 m²
Keukenoppervlakte
11,27 m²
Inhoud
371 m³
Oppervlakte overige inpandige ruimten
6 m²

Indeling

Aantal bouwlagen
3
Aantal kamers
4 (waarvan 3 slaapkamers)
Aantal badkamers
1 (en 2 aparte toiletten)

Locatie

Ligging
Dichtbij openbaar vervoer
In woonwijk
Nabij school

Tuin

Type
Achtertuin
Hoofdtuin
Ja
Oriëntering
West
Heeft een achterom
Ja
Staat
Normaal
Tuin 2 - Type
Voortuin
Tuin 2 - Oriëntering
Oosten
Tuin 2 - Staat
Normaal

Energieverbruik

Energielabel
A

CV ketel

CV ketel
Nefit Proline nxt hrc 24/cw4
Warmtebron
Gas
Bouwjaar
2017
Eigendom
Eigendom

Uitrusting

Aantal parkeerplaatsen
1
Warm water
CV-ketel
Verwarmingssysteem
Centrale verwarming
Keukenvoorzieningen
Inbouwapparatuur
Badkamervoorzieningen
Douche
Ligbad
Wastafel
Parkeergelegenheid
Carport
Glasvezelaansluiting aanwezig
Ja
Tuin aanwezig
Ja
Heeft schuur/berging
Ja
Heeft een dakraam
Ja
Heeft zonnepanelen
Ja

Kadastrale gegevens

Kadastrale aanduiding
Oegstgeest C 6636
Perceeloppervlakte
192 m²
Omvang
Geheel perceel
Eigendomsituatie
Eigen grond

Media

Video

Virtuele tour

Plattegronden

Brochure(s) en overige bijlagen

Brochure KMD 2025.pdf Download
Definitief energielabel A Salvialaan 19 Oegstgeest.pdf Download
Eigendomsinformatie Salvialaan 19 Oegstgeest.pdf Download
Kadastrale kaart Salvialaan 19 Oegstgeest.pdf Download
Meetrapport Salvialaan 19 Oegstgeest.pdf Download
Ingevulde lijst van zaken Salvialaan 19 Oegstgeest.pdf Download
Ingevulde vragenlijst Salvialaan 19 Oegstgeest.pdf Download
WOZ-Waardeloket - Salvialaan 19, Oegstgeest.pdf Download
Bodemloketrapport Salvialaan 19 Oegstgeest.pdf Download

ZonZone